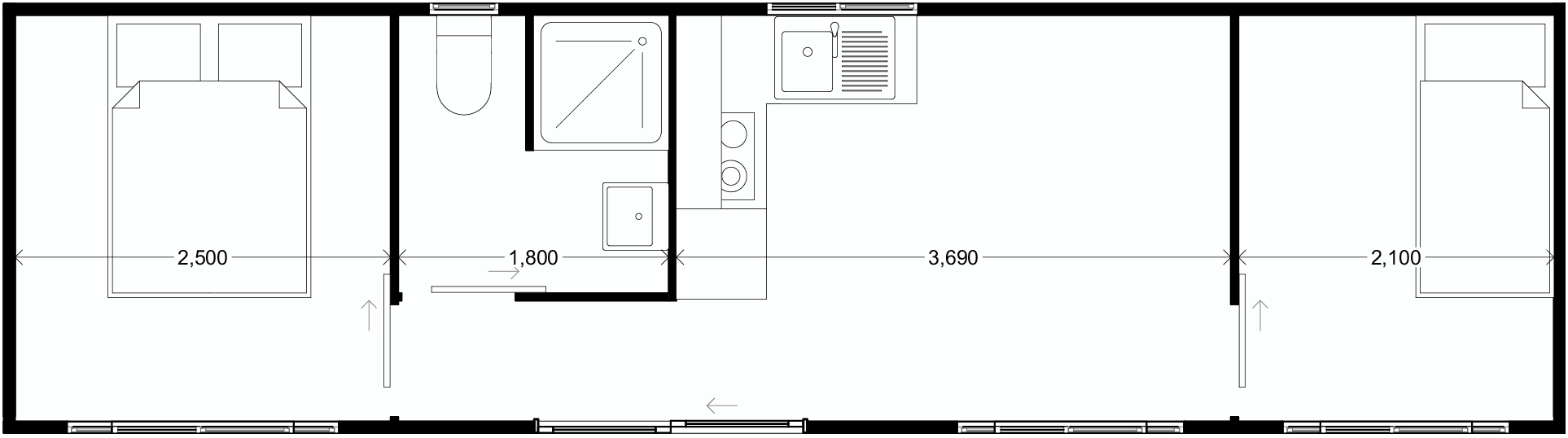
Floorplan

Spec list
Kitchen
- Oven not included
- Ducted rangehood
- Electric Hobs (not all cabins)
- Stainless Steel Sink
- Oven not included
- Ducted rangehood
- Electric Hobs (not all cabins)
- Stainless Steel Sink
Bathroom
- Shower (900mm x 900mm)
- Extractor fan
- Toilet
- Bathroom vanity basin
- Shower (900mm x 900mm)
- Extractor fan
- Toilet
- Bathroom vanity basin
Doors, windows and flooring
- Sliding door entry with curtains
- Roller blinds for all windows
- Carpet and vinyl flooring
- Sliding door entry with curtains
- Roller blinds for all windows
- Carpet and vinyl flooring
Power, lighting and heating
- 16 amp power supply
- Power points (amount varies)
- 16 amp power supply
- Power points (amount varies)
Water and waste
- Macerator pump
- 50m long, 25mm alkathene waste pipe (for the macerator)
- Macerator pump
- 50m long, 25mm alkathene waste pipe (for the macerator)
FAQs
Filter by category: