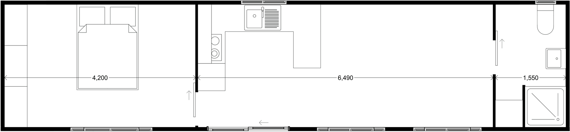
Floorplan

Spec list
Guarantee, certification and safety
- 3 year workmanship guarantee
- Code Compliance Certificate (CCC)
- Electrical and gas certificates
- Smoke alarms
- 100mm Colorsteel EPS & PIR Panel
- Galvanised Steel Chassis with Skids (epoxy coated)
- Underfloor insulation
- Fully Insulated - Meets the latest H1 Insulation standards
- New Zealand Made Materials
- 3 year workmanship guarantee
- Code Compliance Certificate (CCC)
- Electrical and gas certificates
- Smoke alarms
- 100mm Colorsteel EPS & PIR Panel
- Galvanised Steel Chassis with Skids (epoxy coated)
- Underfloor insulation
- Fully Insulated - Meets the latest H1 Insulation standards
- New Zealand Made Materials
Kitchen
- 4-burner electric hobs w/. oven
- Ducted rangehood
- Sink (option for black or chrome)
- Splashback
- Soft-closing cabintry (drawers & cupboards)
- Breakfast Bar
- Fridge Tower
- 4-burner electric hobs w/. oven
- Ducted rangehood
- Sink (option for black or chrome)
- Splashback
- Soft-closing cabintry (drawers & cupboards)
- Breakfast Bar
- Fridge Tower
Bathroom
- Shower (900mm x 900mm)
- Extractor fan
- Toilet
- Bathroom vanity basin
- Mirror cabinet
- Towel ring
- Toilet roll holder
- Macerator Pump
- Washing machine plumbing & electrical
- Linen / storage cupboard
- Vinyl flooring
- Shower (900mm x 900mm)
- Extractor fan
- Toilet
- Bathroom vanity basin
- Mirror cabinet
- Towel ring
- Toilet roll holder
- Macerator Pump
- Washing machine plumbing & electrical
- Linen / storage cupboard
- Vinyl flooring
Doors, windows and flooring
- Sliding door entry with curtains
- Double-glazed windows with Low-E Glass
- Roller blinds for all windows
- Carpet and vinyl flooring
- Small entry-level deck 900mm X 2060mm
- Pergola not included
- Bedroom wardrobes
- Sliding door entry with curtains
- Double-glazed windows with Low-E Glass
- Roller blinds for all windows
- Carpet and vinyl flooring
- Small entry-level deck 900mm X 2060mm
- Pergola not included
- Bedroom wardrobes
Power, lighting and heating
- TV outlet and wall bracket
- Pre-wiring for heat pump (heat pump not included)
- 32 amp power supply
- 15m extension lead
- Power points (amount varies)
- USB Power Points (amount varies)
- TV outlet and wall bracket
- Pre-wiring for heat pump (heat pump not included)
- 32 amp power supply
- 15m extension lead
- Power points (amount varies)
- USB Power Points (amount varies)
Water and waste
- Gas Califont for continuous hot water (LPG bottles not included)
- Macerator pump
- 50m long, 25mm alkathene waste pipe (for the macerator)
- Option of gravity-fed plumbing with no macerator
- Gas Califont for continuous hot water (LPG bottles not included)
- Macerator pump
- 50m long, 25mm alkathene waste pipe (for the macerator)
- Option of gravity-fed plumbing with no macerator
FAQs
Filter by category: